О проекте
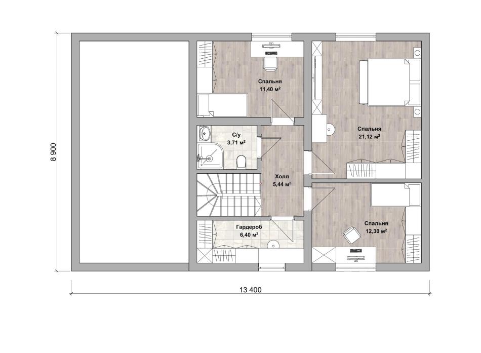
- Площадь дома: 238,52 м2
- Габаритные размеры дома 13,4 м х 8,9 м
- Срок строительства: 30 дней
Проект дома с гаражом. Удобный и эргономичный, рассчитан на постоянное проживание семьи из 4-6 человек. Комбинированная отделка стройнит здание. Часть пристройки под гараж занимает котельная, поэтому удалось сделать отдельную кухню-столовую. Гостиная служит местом сбора домочадцев и приёма гостей. В доме 4 спальни, 2 ванные комнаты и гардеробная. Много места, света и воздуха. Интересный проект при использовании стандартных приёмов проектирования.
- В данную стоимость входит строительство конструктива дома в базовой комплектации:
- Фундамент - ленточный;
- Наружные и внутренние несущие стены из арболитовых блоков толщиной 300 мм на теплом кладочном растворе;
- Перекрытия - деревянные балки;
- Кровля - металлочерепица;
- На строительство дома мы предлагаем Вам беспроцентную рассрочку платежа, ипотеку и возможность реализовать материнский капитал.
Все работы по договору Вы оплачиваете поэтапно, в подарок от нас Вы получаете проект дома и межэтажную лестницу.Наши архитекторы разместят дом на земельном участке в соответствии с ориентацией по сторонам света. Будет разработана продуманная для Вас планировка рассчитанная для комфортного проживания.
Также вы можете построить дом самостоятельно, заказав у нас только материалы (смотрите товары) или услуги по проектированию, технадзору.














