О проекте
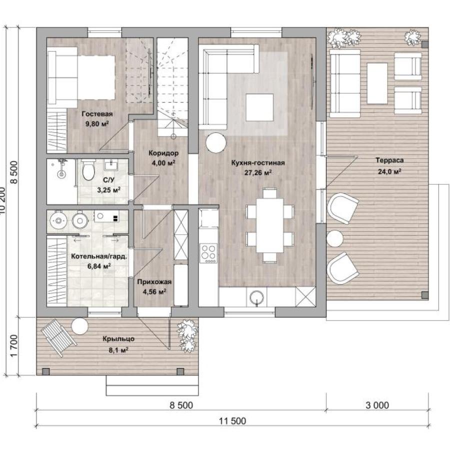
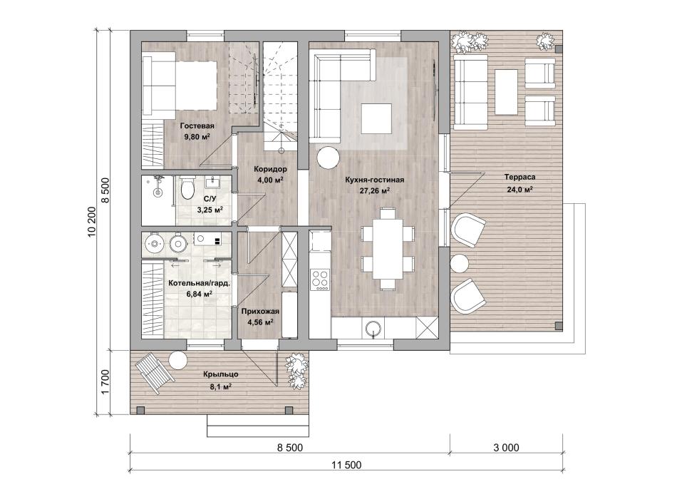
- Площадь дома: 144,5 м2
- Габаритные размеры дома 8,5 м х 8,5 м
- Срок строительства: 30 дней
Проект двухэтажного дома. Оптимальный размер для семьи из 4-5 человек. Подходит к круглогодичному проживанию благодаря тёплой прихожей, котельной. Впишется в городской и загородный участок благодаря классической внешней отделке, эффектной подсветке. Половину первого этажа занимает светлая гостиная с кухонной зоной, огромным панорамным окном и выходом на просторную крытую террасу. С другой стороны расположены котельная-гардеробная, санузел и гостевая спальня. На втором этаже 3 спальни, гардеробная и ванная комната.
В данную стоимость входит строительство конструктива дома в базовой комплектации:
- Фундамент - ленточный;
- Наружные и внутренние несущие стены из арболитовых блоков толщиной 300 мм на теплом кладочном растворе;
- Перекрытия - деревянные балки;
- Кровля - металлочерепица;
- На строительство дома мы предлагаем Вам беспроцентную рассрочку платежа, ипотеку и возможность реализовать материнский капитал.
Все работы по договору Вы оплачиваете поэтапно, в подарок от нас Вы получаете проект дома.
Наши архитекторы разместят дом на земельном участке в соответствии с ориентацией по сторонам света. Будет разработана продуманная для Вас планировка рассчитанная для комфортного проживания.
Также вы можете построить дом самостоятельно, заказав у нас только материалы (смотрите товары) или услуги по проектированию, технадзору. - Предложение носит информационный характер и не является публичной офертой.Точную цену уточняйте у менеджеров.














