Дом без хлопот. Разве это возможно?
А мы заявляем, что это возможно. У наших клиентов и так хлопот минимум. Заключили договор – передали ответственность и заботы на подрядчика. Знай, жди, получай отчёты да выбирай мебель и занавески.
Но можно сделать “ход конём” и стать обладателем собственного дома быстро. Достаточно купить готовый дом от Первый Арболитовый Завод.
Откуда берутся готовые дома? Мы ведём статистику, отслеживаем не только тренды, но и частые запросы заказчиков. Группа архитекторов работает с учётом всех вводных. Так рождается проект, а потом и дом, который строится специально на продажу.
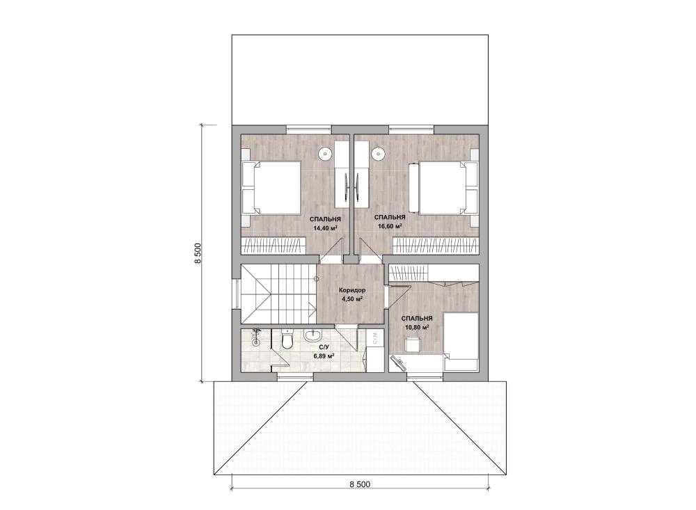
В этом доме 3 спальни, 2 санузла, просторная прихожая и большая гостиная на первом этаже. Отличительная черта – уютная терраса с панорамным остеклением. Пристройка значительно увеличит площадь дома, послужит переговорной, чайной, игровой, кабинетом, спортзалом.
Дом расположен в Андреевской слободе. На участке газ, вода, канализация. Такое приобретение подходит под льготную ипотеку, которую можно оформить прямо через застройщика — самый выгодный вариант.
Воспользуйтесь возможностью стать домовладельцами без хлопот, такой шанс выпадает не часто.





