О проекте
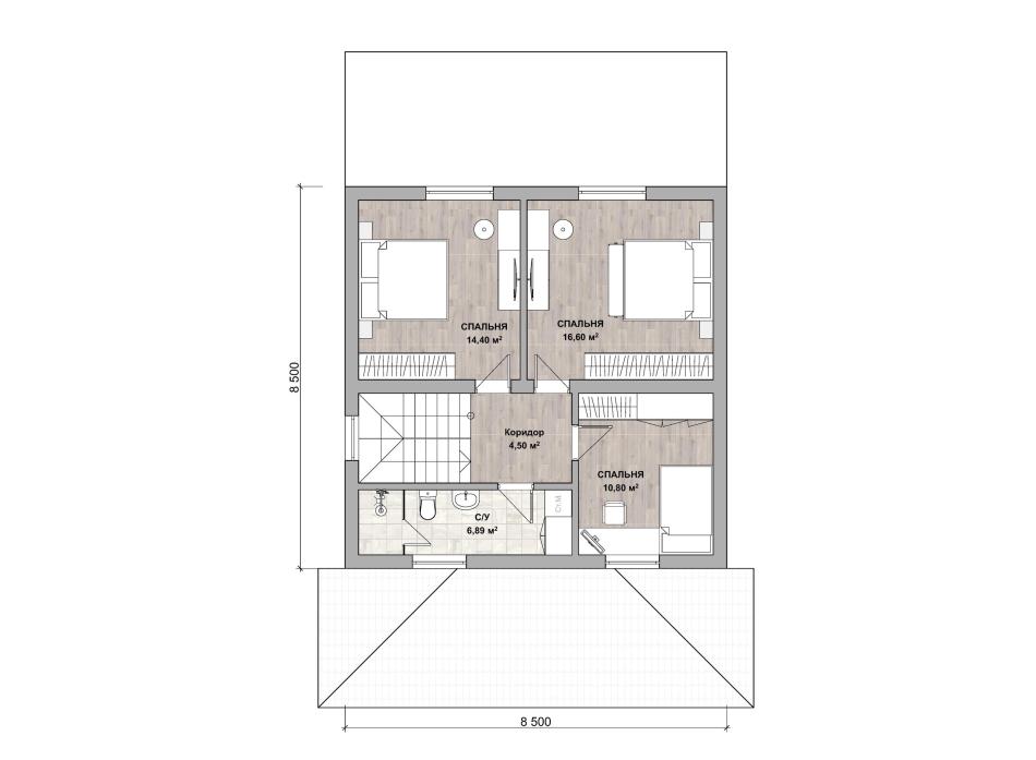
- Площадь дома: 144,5 м2
- Габаритные размеры дома 8,5 м х 8,5 м
- Срок строительства: 30 дней
Проект двухэтажного здания с 2 террасами – отличный вариант увеличить площадь дома без особых затрат. Подходит для круглогодичного проживания семьи из 3-5 человек. Большое крытое крыльцо защищает входную дверь от осадков. Служит дополнительной зоной отдыха. Гостиная совмещена с кухней в нише и столовой. Застеклённая терраса – светлое многофункциональное помещение с раздвижными окнами. Предусмотрены 3 спальни, 2 ванные комнаты, гардеробная.
В данную стоимость входит строительство конструктива дома в базовой комплектации: - Фундамент - ленточный;
- Наружные и внутренние несущие стены из арболитовых блоков толщиной 300 мм на теплом кладочном растворе;
- Перекрытия - деревянные балки;
- Кровля - металлочерепица;
-
На строительство дома мы предлагаем Вам беспроцентную рассрочку платежа, ипотеку и возможность реализовать материнский капитал.
Все работы по договору Вы оплачиваете поэтапно, в подарок от нас Вы получаете проект дома и межэтажную лестницу.
Наши архитекторы разместят дом на земельном участке в соответствии с ориентацией по сторонам света. Будет разработана продуманная для Вас планировка рассчитанная для комфортного проживания.
Также вы можете построить дом самостоятельно, заказав у нас только материалы (смотрите товары) или услуги по проектированию, технадзору.
















