О проекте
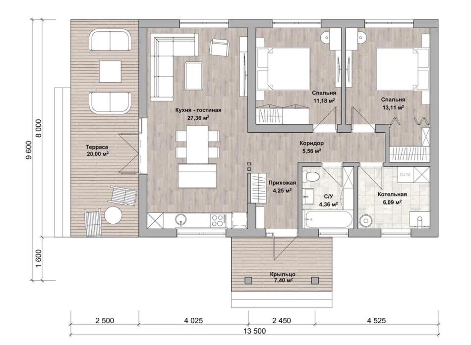
- Площадь дома: 88 м2
- Габаритные размеры дома 8 м х 11 м
- Срок строительства: 30 дней
Проект небольшого одноэтажного дома для семьи из 2-4 человек. Бюджетный эргономичный дом впишется в любой участок и пейзаж. Станет любимым семейным гнездом или дачным домиком. Крыльцо с навесом и прихожая на страже микроклимата. Прямоугольная светлая кухня-гостиная почти удваивается с выходом на террасу. 2 спальни отделены от общего пространства толстыми стенами. Ванная комната и котельная обеспечат комфорт и уют. Проект подойдёт молодой семье, пенсионерам, любителям жизни в максимальной близости с природой.
В данную стоимость входит строительство конструктива дома в базовой комплектации:
- Фундамент - ленточный;
- Наружные и внутренние несущие стены из арболитовых блоков толщиной 300 мм на теплом кладочном растворе;
- Перекрытия - деревянные балки;
- Кровля - металлочерепица;
На строительство дома мы предлагаем Вам беспроцентную рассрочку платежа, ипотеку и возможность реализовать материнский капитал.
Все работы по договору Вы оплачиваете поэтапно, в подарок от нас Вы получаете проект дома и межэтажную лестницу.
Наши архитекторы разместят дом на земельном участке в соответствии с ориентацией по сторонам света. Будет разработана продуманная для Вас планировка рассчитанная для комфортного проживания.
Также вы можете построить дом самостоятельно, заказав у нас только материалы (смотрите товары) или услуги по проектированию, технадзору.













