О проекте
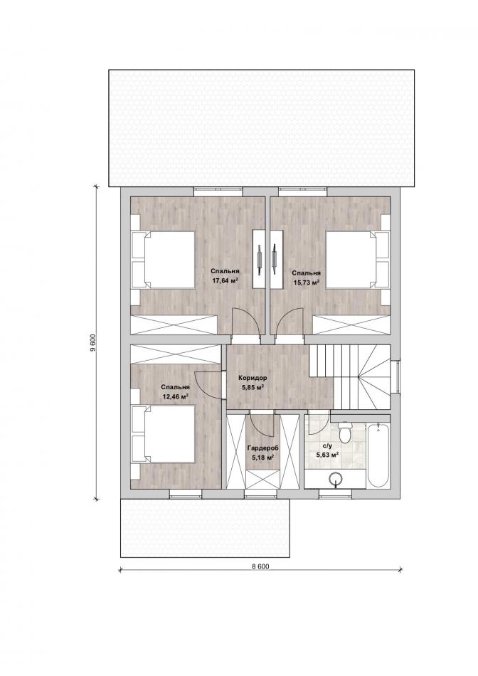
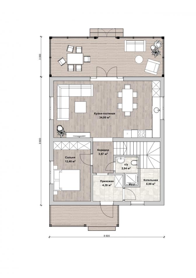
- Площадь дома: 165,12 м2
- Габаритные размеры дома 8,6 м х 9,6 м
- Срок строительства: 30 дней
Двухэтажный дом для круглогодичного проживания семьи из 4-7 человек. О комфорте жильцов позаботятся навес над входом, прихожая и котельная. В доме кухня-гостиная, 4 спальни, гардеробная и 2 ванные. Большие окна и потолки выше обычных делают комнаты светлее и визуально просторнее. Много света – меньше расход электроэнергии. Лестница на второй этаж с окном для безопасности домочадцев. Изюминка проекта – тёплая застеклённая веранда, которая примыкает к кухне-гостиной. Хозяева могут использовать её как зимний сад, кабинет, солярий. Веранда удвоит площадь гостиной и добавит ей уюта и лоска.
В данную стоимость входит строительство конструктива дома в базовой комплектации:
- Фундамент - ленточный;
- Наружные и внутренние несущие стены из арболитовых блоков толщиной 300 мм на теплом кладочном растворе;
- Перекрытия - деревянные балки;
- Кровля - металлочерепица;
На строительство дома мы предлагаем Вам беспроцентную рассрочку платежа, ипотеку и возможность реализовать материнский капитал.
Все работы по договору Вы оплачиваете поэтапно, в подарок от нас Вы получаете проект дома и межэтажную лестницу.
Наши архитекторы разместят дом на земельном участке в соответствии с ориентацией по сторонам света. Будет разработана продуманная для Вас планировка рассчитанная для комфортного проживания.
Также вы можете построить дом самостоятельно, заказав у нас только материалы (смотрите товары) или услуги по проектированию, технадзору.














