О проекте
- Площадь дома: 267 м2
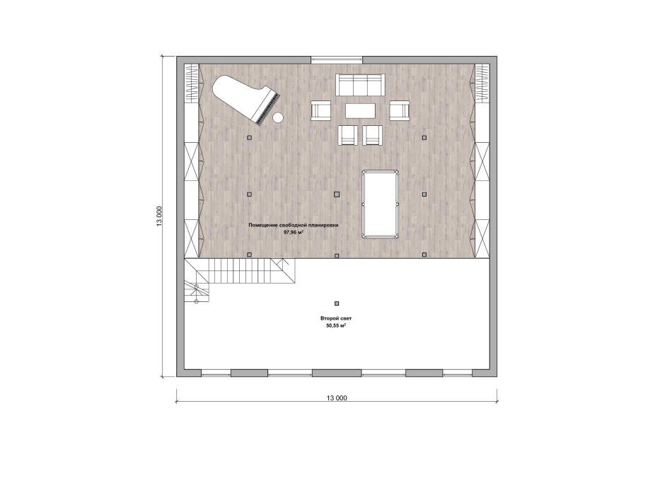
- Габаритные размеры дома 13 м х 13 м
- Срок строительства: 30 дней
Проект большого необычного здания для семьи из 4-6 человек. Здесь просторная кухня-гостиная с “вторым светом” и выходом на террасу, панорамные окна под крышу, камины внутри и снаружи. В доме 3 спальни, одна из которых с персональным санузлом и гардеробной. Ванная комната и котельная обеспечат комфорт круглый год. Лестница из гостиной ведёт в пространство под крышей со свободной планировкой. Почти 100 квадратных метров, которые можно использовать как угодно: домашний офис, мастерская, галерея, библиотека. Достаточно места для воплощения любых фантазий.
- В данную стоимость входит строительство конструктива дома в базовой комплектации:
- Фундамент - ленточный;
- Наружные и внутренние несущие стены из арболитовых блоков толщиной 300 мм на теплом кладочном растворе;
- Перекрытия - деревянные балки;
- Кровля - металлочерепица;
- На строительство дома мы предлагаем Вам беспроцентную рассрочку платежа, ипотеку и возможность реализовать материнский капитал.
Все работы по договору Вы оплачиваете поэтапно, в подарок от нас Вы получаете проект дома и межэтажную лестницу.
Наши архитекторы разместят дом на земельном участке в соответствии с ориентацией по сторонам света. Будет разработана продуманная для Вас планировка рассчитанная для комфортного проживания.Также вы можете построить дом самостоятельно, заказав у нас только материалы (смотрите товары) или услуги по проектированию, технадзору.














