О проекте
- Площадь дома: 120 м2
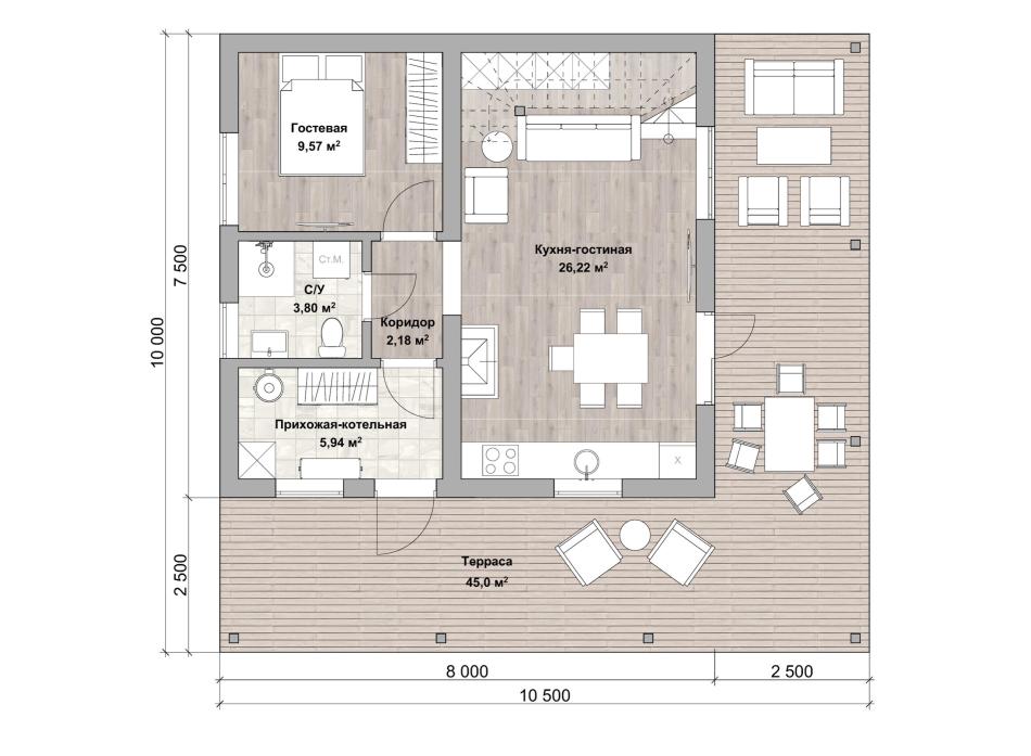
- Габаритные размеры дома 7,5 м х 8 м
- Срок строительства: 30 дней
Проект уютного двухэтажного дома для семьи из 3-5 человек. Небольшая площадь гостиной-кухни компенсируется просторной угловой террасой. Террасу при желании. можно застеклить полностью или частично. Прихожая совмещена с котельной – экономия квадратных метров. В доме 2 ванные комнаты, 4 спальни: одна на первом этаже, 3 на втором. К одной из верхних комнат примыкает гардеробная. Благодаря интересной отделке и подсветке здание станет украшением любой улицы.
- В данную стоимость входит строительство конструктива дома в базовой комплектации:
- Фундамент - ленточный;
- Наружные и внутренние несущие стены из арболитовых блоков толщиной 300 мм на теплом кладочном растворе;
- Перекрытия - деревянные балки;
- Кровля - металлочерепица;
- На строительство дома мы предлагаем Вам беспроцентную рассрочку платежа, ипотеку и возможность реализовать материнский капитал.
Все работы по договору Вы оплачиваете поэтапно, в подарок от нас Вы получаете проект дома и межэтажную лестницу.
Наши архитекторы разместят дом на земельном участке в соответствии с ориентацией по сторонам света. Будет разработана продуманная для Вас планировка рассчитанная для комфортного проживания.
Также вы можете построить дом самостоятельно, заказав у нас только материалы (смотрите товары) или услуги по проектированию, технадзору.














